• SMA MODELE AMANDINE AVANT FI.jpg
  • SMA MODELE AMANDINE ARRIERE FI.jpg
  • SMA MODELE AMANDINE INT FI.jpg
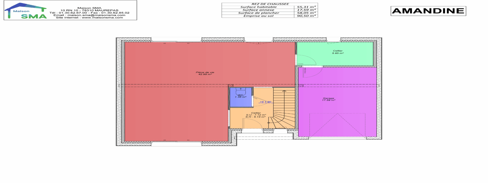
  • Amandine_rdc.png
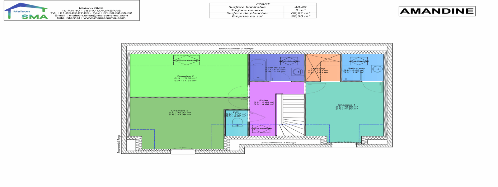
  • Amandine_etage.png
5
90 m² Terrain de 916 m² 4 pièces 3 chambres 1 sdb / sde

Maison neuve à Septeuil

302 850 €
Référence : 3702310

Pour les amoureux de nature et de calme , très beau terrain , viabilités sur rue , prévoir assainissement individuel.
Zone UA , hauteur maxi 10 M , façade 18 ML.

Notre modèle AMANDINE fait partie de la famille des modèles en "L". Vous l'aimerez pour ses grands especes et sa surface optimisée sans perte de place et avec un design moderne et actuel. Il vous est proposé avec une cuisine ouverte sur séjour. Le cellier, proche de la cuisine recevera technique et provisions. Le garage intégré communique directement avec le cellier et peut etre transformé en chambre.
A l'étage, 3 chambres (dont une belle suite parentale), 1 salle de bain, une salle d'eau et un WC séparé.
Pour tous renseignements , contacter Sébastien Barrault 07-66-60-15-92

Simulation gratuite

Maison à construire 78790 Septeuil

Agence de Maurepas

01.30.62.67.67 10 route national - 78310 Maurepas

Vous aimerez aussi