• SMA MODELE AMANDINE AVANT FI.jpg
  • SMA MODELE AMANDINE ARRIERE FI.jpg
  • SMA MODELE AMANDINE INT FI.jpg
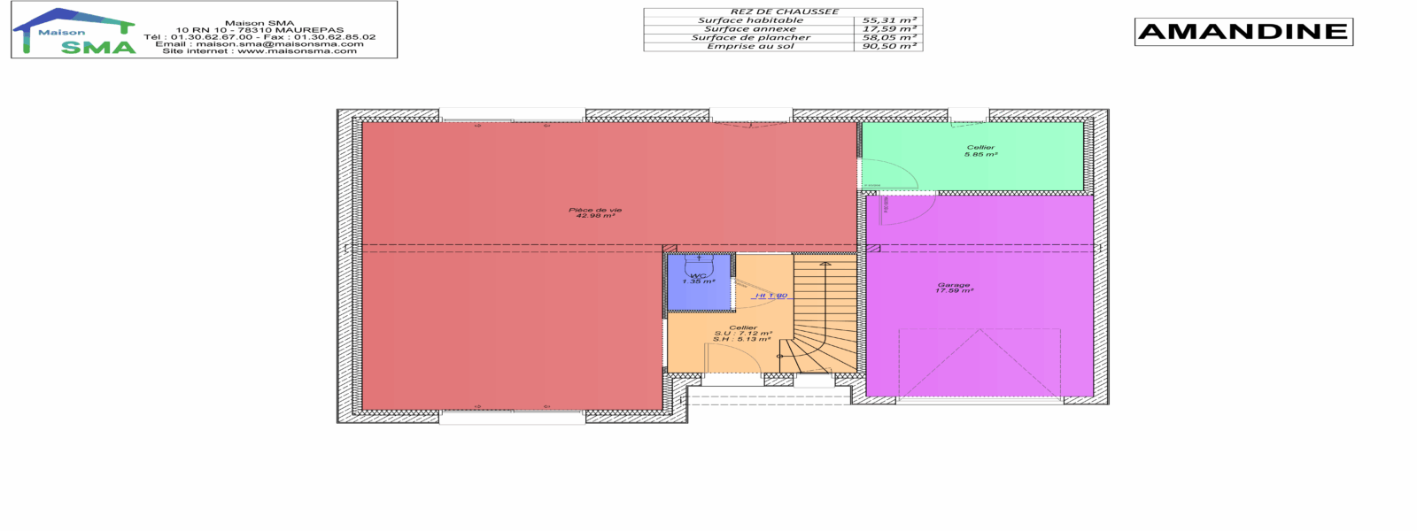
  • Amandine_rdc.png
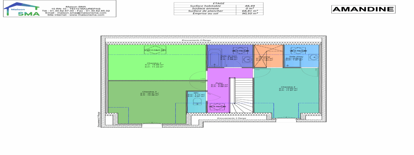
  • Amandine_etage.png
5
90 m² Terrain de 513 m² 4 pièces 3 chambres 2 sdb / sde

Maison neuve à Houdan

305 000 €
Référence : 3702402

Dans une petit lotissement de 6 lots , venez découvrir ce très beau terrain entièrement viabilisé de 513 M².
Plusieurs lots et possibilité de construction possibles.
Commerces , écoles , collège , pharmacie , médecin .....
Accès N12 rapide

Notre modèle AMANDINE fait partie de la famille des modèles en "L". Vous l'aimerez pour ses grands especes et sa surface optimisée sans perte de place et avec un design moderne et actuel. Il vous est proposé avec une cuisine ouverte sur séjour. Le cellier, proche de la cuisine recevera technique et provisions. Le garage intégré communique directement avec le cellier et peut etre transformé en chambre.
A l'étage, 3 chambres (dont une belle suite parentale), 1 salle de bain, une salle d'eau et un WC séparé.
Venez découvrir ce projet auprès de Sébastien Barrault 07-66-60-15-92

Simulation gratuite

Maison à construire 78550 Houdan

Agence de Maurepas

01.30.62.67.67 10 route national - 78310 Maurepas

Vous aimerez aussi