• SMA MODELE LEA AVANT.jpg
  • SMA MODELE LEA ARRIERE.jpg
  • SMA MODELE LEA INT.jpg
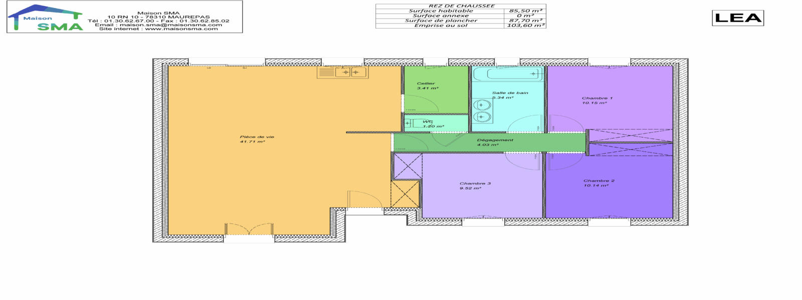
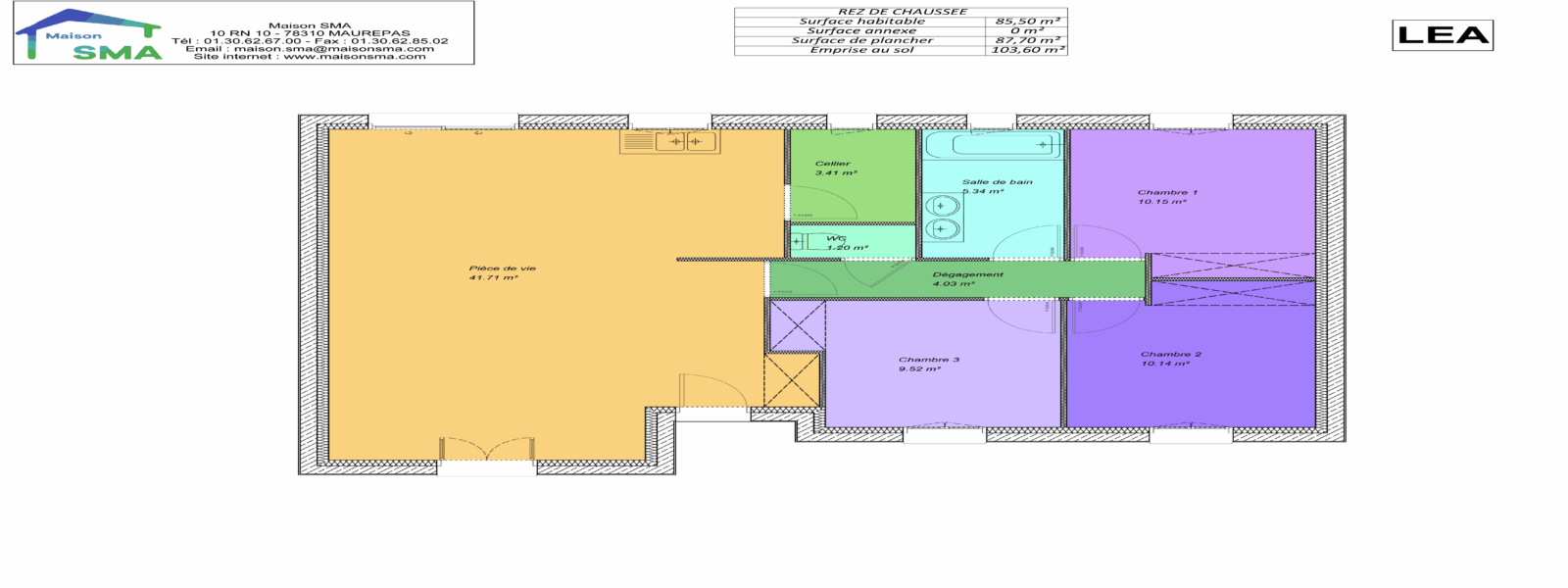
  • LEA_rdc.png
4
86 m² Terrain de 680 m² 4 pièces 2 chambres 1 sdb / sde

Maison neuve à la Queue-les-Yvelines

349 000 €
Référence : 3711966

Idéal maison de plain-pied.
Situé au coeur de Garancières,A 2 minutes de La Queue les Yvelines, ce terrain à bâtir de 682 m²
bénéficie d'un emplacement privilégié, à deux pas des écoles,
commerces, bus, de la gare (direction Montparnasse) et proche de
l'axe N12.
Dans une petite rue calme, il offre un cadre paisible et une belle
exposition, idéal pour tous vos projets de construction avec une
emprise au sol de 30 %.
Une opportunité rare à découvrir rapidement.
Contactez nous pour en savoir plus !

Découvrez notre modèle LEA.
LEA est une maison traditionnelle, de plain-pied, facile à vivre, idéale pour toute la famille.
Elle vous accueille avec chaleur et simplicité grâce à son vaste séjour/salle à manger qui donne sur le jardin.
Cette construction est idéal pour les petits budgets.
Modèle de plain-pied, sa surface habitable varie entre 80m2 et 100m2.
Le séjour/salle à manger s'ouvre sur le jardin.
La maison existe en version 2, 3 ou 4 chambres.
1 Salle de bain
1 cellier
1 WC indépendant

Simulation gratuite

Maison à construire 78940 La Queue-les-Yvelines

Agence de Maurepas

01.30.62.67.67 10 route national - 78310 Maurepas

Vous aimerez aussi