• SMA MODELE AMANDINE AVANT FI.jpg
  • SMA MODELE AMANDINE ARRIERE FI.jpg
  • SMA MODELE AMANDINE INT FI.jpg
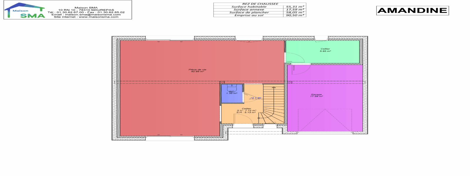
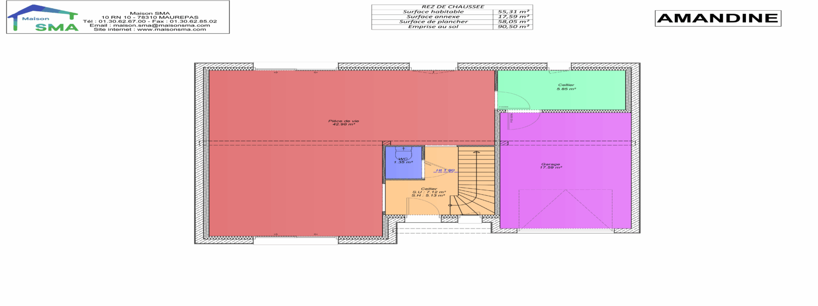
  • Amandine_rdc.png
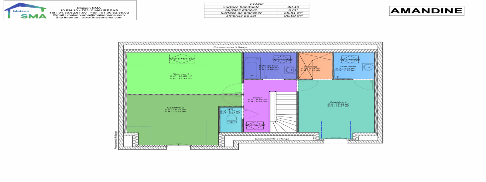
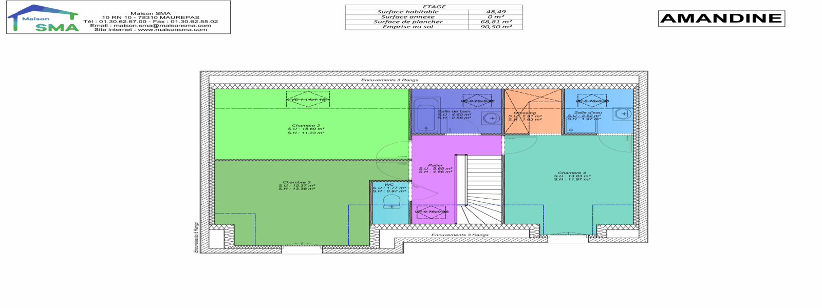
  • Amandine_etage.png
5
90 m² Terrain de 850 m² 4 pièces 3 chambres 1 sdb / sde

Maison neuve à Gambais

363 850 €
Référence : 3717743

Dans un petit hameau à quelques minutes de Gambais , venez découvrir ce magnifique terrain plat et entièrement viabilisé.
Plusieurs lots disponibles pour amateurs de tranquilité et de nature et de verdure.
Rare sur le secteur.

Notre modèle AMANDINE fait partie de la famille des modèles en "L". Vous l'aimerez pour ses grands especes et sa surface optimisée sans perte de place et avec un design moderne et actuel. Il vous est proposé avec une cuisine ouverte sur séjour. Le cellier, proche de la cuisine recevera technique et provisions. Le garage intégré communique directement avec le cellier et peut etre transformé en chambre.
A l'étage, 3 chambres (dont une belle suite parentale), 1 salle de bain, une salle d'eau et un WC séparé.
Sébastien Barrault 07-66-60-15-92

Simulation gratuite

Maison à construire 78950 Gambais

Agence de Maurepas

01.30.62.67.67 10 route national - 78310 Maurepas

Vous aimerez aussi