• SMA MODELE AMANDINE AVANT FI.jpg
  • SMA MODELE AMANDINE ARRIERE FI.jpg
  • SMA MODELE AMANDINE INT FI.jpg
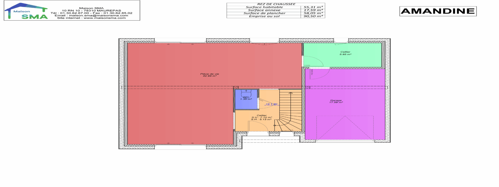
  • Amandine_rdc.png
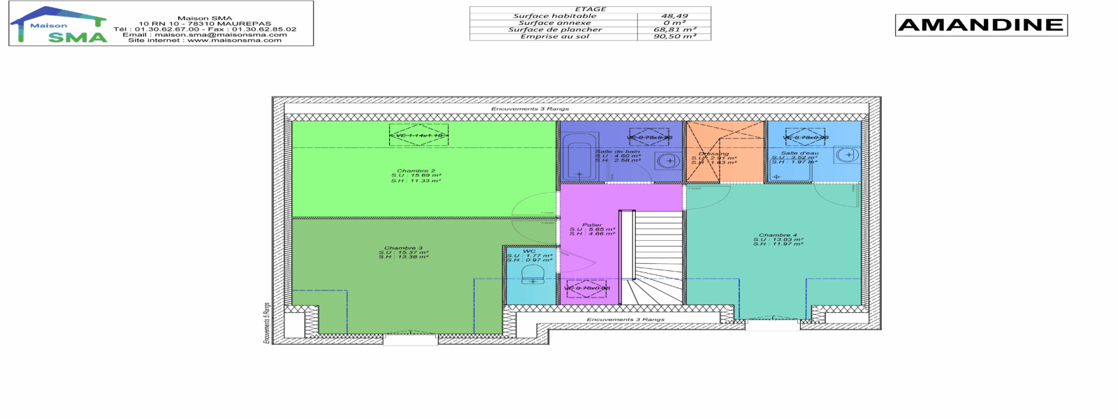
  • Amandine_etage.png
5
105 m² Terrain de 300 m² 4 pièces 3 chambres 1 sdb / sde

Maison neuve à Montfort-l’Amaury

353 850 €
Référence : 3731852

Terrain plat , viabilisé , proche Montfort l' Amaury.
R+ Combles possible
Très rare sur le secteur Sébastien Barrault 07-66-60-15-92

Notre modèle AMANDINE fait partie de la famille des modèles en "L". Vous l'aimerez pour ses grands especes et sa surface optimisée sans perte de place et avec un design moderne et actuel. Il vous est proposé avec une cuisine ouverte sur séjour. Le cellier, proche de la cuisine recevera technique et provisions. Le garage intégré communique directement avec le cellier et peut etre transformé en chambre.
A l'étage, 3 chambres (dont une belle suite parentale), 1 salle de bain, une salle d'eau et un WC séparé.
Contactez Sébastien Barrault 07-66-60-15-92

Simulation gratuite

Maison à construire 78490 Montfort-l'Amaury

Agence de Maurepas

01.30.62.67.67 10 route national - 78310 Maurepas

Vous aimerez aussi