• SMA MODELE LOUISE av.jpg
  • SMA MODELE LOUISE arriere.jpg
  • SMA MODELE LOUISE int.jpg
  • LOUISE PLAN.PNG
  • Logo SMA.png
5
89 m² Terrain de 433 m² 4 pièces 4 chambres 1 sdb / sde

centre ville, tous commerces, écoles, collège, gare SNCF Saint Lazare, 20 minutes de A13

286 000 €
Référence : 3966942

magnifique terrain, plat et clos de murs, belle façade sur rue permettant tous types de constructions, non accolée

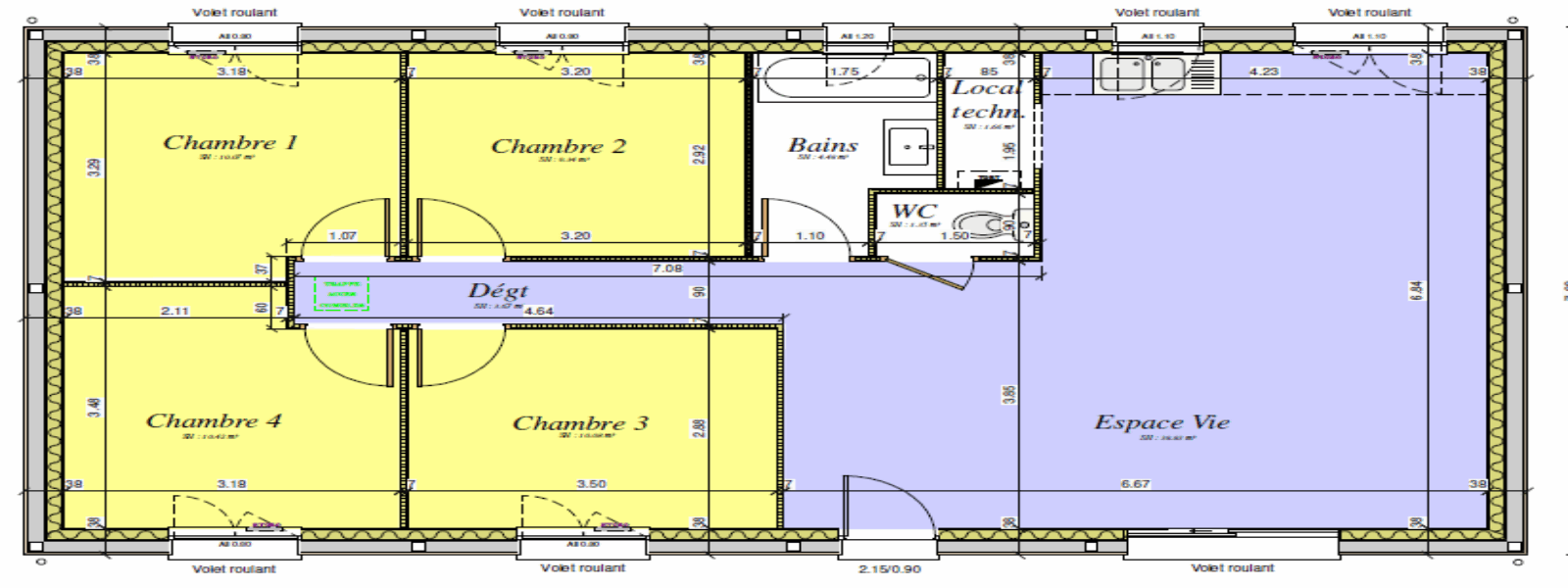
Ce modèle de maison LOUISE est un plain pied de 89.90 m² minimum est composé d'une pièce de vie en L de plus de 38 m², d'une partie nuit qui se compose de 4 chambres. Vous pouvez en dédier une à usage de bureau ou salle de jeux. Une salle de bain équipée d'une baignoire ou douche est accessible par le couloir ainsi que des WC indépendants. Le cellier permettra plus d'espace pour le rangement.
Nos modèles de maison SMA sont modulables et personnalisables afin de les faire correspondre au mieux à vos attentes. N'attendez plus, venez discuter de votre projet de construction avec l'un de nos conseillers dans l'une de nos agences situées proche de chez vous.

Simulation gratuite

Maison à construire 78980 Bréval

Agence de Maurepas

01.30.62.67.67 10 route national - 78310 Maurepas

Vous aimerez aussi