• SMA MODELE RUEIL BASE 70 AVANT FI.jpg
  • SMA MODELE RUEIL BASE 70 ARRIERE FI.jpg
  • SMA MODELE RUEIL BASE 70 INT FI.jpg
  • PLANS COMMERCIAL jpg.jpg
4
110.58 m² Terrain de 540 m² 6 pièces 4 chambres 2 sdb / sde

Maison SMA vous présente ce projet de construction clef en main sur la commune de Triel sur seine

309 400 €
Référence : 4068255

Terrain à bâtir plat de 540m2 toutes viabilités sur rue, proche écoles, transport et forêt . Belle possibilité de construction R+1 autorisé avec une emprise au sol possible de 140m2
Contactez nous afin d'étudier ensemble votre projet de construction

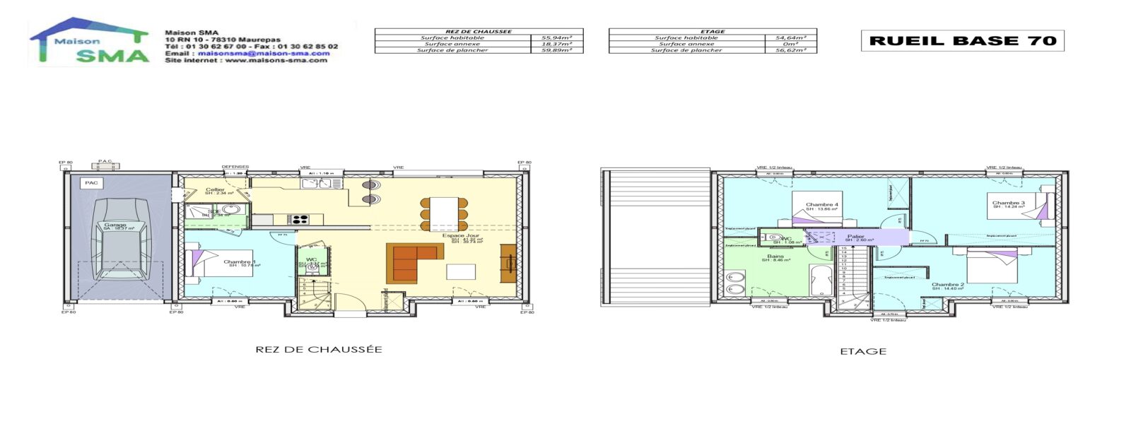
Charme, clarté… notre modèle RUEIL saura vous séduire avec ses grands volumes de vie savamment aménagés.

RUEIL, 110m2 de sobriété et modernité spécialement étudiés pour satisfaire au mieux votre demande.

Chaleureux, le rez-de-chaussée du modèle RUEIL s'ouvre sur un vaste séjour, pouvant accueillir à la fois un espace salle à manger et une partie salon. Sa grande baie vitrée en font une pièce très lumineuse vous offrant une vue imprenable sur le jardin.

Atouts supplémentaires, une vraie cuisine ouverte pour partager des moments de convivialité en famille, un cellier ainsi qu’un garage spacieux accolé à votre maison possible en option. Sans oublié une belle chambre au RDC équipée d'une salle d'eau privative.

Grâce à un escalier situé dans l'entrée, vous accédez à l'étage où se situe la partie nuit, totalement indépendante de la partie jour. La partie nuit s’articule autour de 3 grandes chambres ainsi qu'une grande salle de bain avec WC indépendant.

Simulation gratuite

Maison à construire 78510 Triel-sur-Seine

Agence de Maurepas

01.30.62.67.67 10 route national - 78310 Maurepas

Vous aimerez aussi