• SMA MODELE ELISE avant.jpg
  • SMA MODELE ELISE arriere.jpg
  • SMA MODELE ELISE int.jpg
  • ELISE PLAN.PNG
  • Logo SMA.png
5
75 m² Terrain de 800 m² 3 pièces 3 chambres 1 sdb / sde

offrez vous une maison individuelle au prix d’un appartement!!

197 000 €
Référence : 4060410

a la loupe!! vous recherchez le calme, la tranquillité pour vous et vos enfants, un beau terrain de 800 m² plat, ce projet est fait pour vous! a 1h20 de paris Montparnasse, écoles maternelle, primaire,sur place, collège et grandes surfaces à 5 minutes. un havre de paix avec les commodités. ne tardez plus,contactez LAIN BRUNOIS AU 06 72 25 40 73 pour plus de renseignements. ( frais de notaire et raccordements inclus)

Vous avez un projet de construction ?
N'attendez plus, venez discuter de votre projet de construction avec l'un de nos conseillers dans l'une de nos agences situées proche de chez vous.
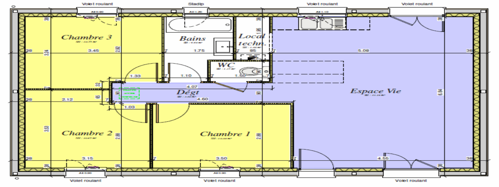
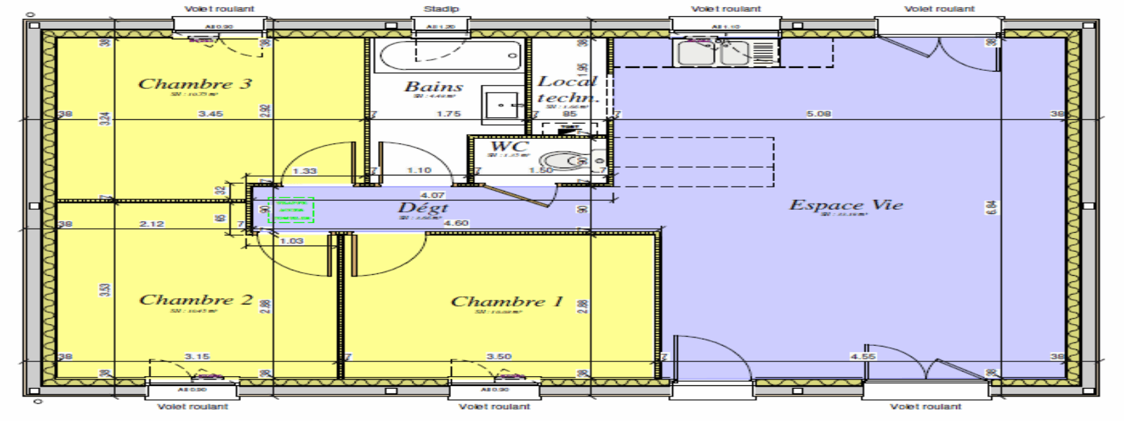
Voici notre nouveau modèle ELISE. Ce modèle de maison plain pied de 75.61m² minimum est composé d'une pièce de vie de plus de 33 m², d'une partie nuit qui se compose de 3 chambres. Vous pouvez en dédier une à usage de bureau ou salle de jeux. Une salle de bain équipée d'une baignoire ou douche est accessible par le couloir ainsi que des WC indépendants.
Nos modèles de maison SMA sont modulables et personnalisables afin de les faire correspondre au mieux à vos attentes.

Simulation gratuite

Maison à construire 28240 La Loupe

Agence de Maurepas

01.30.62.67.67 10 route national - 78310 Maurepas