• SMA MODELE LEA AVANT.jpg
  • SMA MODELE LEA ARRIERE.jpg
  • SMA MODELE LEA INT.jpg
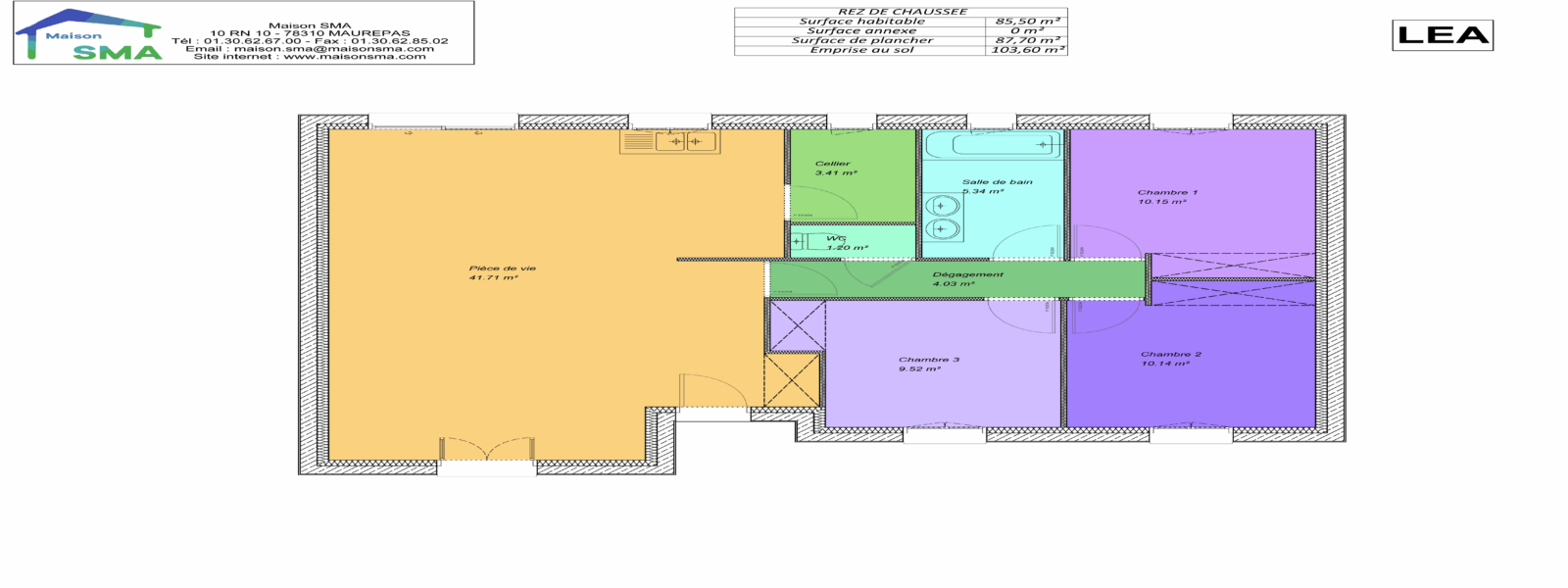
  • LEA_rdc.png
4
90 m² Terrain de 404 m² 4 pièces 2 chambres 1 sdb / sde

Terrain + maison

259 900 €
Référence : 3702782

Profitez de ce magnifique terrain entièrement viabilisé dans un petit lotissement sur la commune de BU.
Accès rapide RN 12 , tous commerces , médecins et écoles + collège sur la commune , ce terrain très agréable vous séduira par ses différentes possibilités de construction.

Découvrez notre modèle LEA.
LEA est une maison traditionnelle, de plain-pied, facile à vivre, idéale pour toute la famille.
Elle vous accueille avec chaleur et simplicité grâce à son vaste séjour/salle à manger qui donne sur le jardin.
Cette construction est idéal pour les petits budgets.
Modèle de plain-pied, sa surface habitable varie entre 80m2 et 100m2.
Le séjour/salle à manger s'ouvre sur le jardin.
La maison existe en version 2, 3 ou 4 chambres.
1 Salle de bain
1 cellier
1 WC indépendant
Venez discuter de votre projet avec notre conseiller Sébastien Barrault 07-66-60-15-92

Simulation gratuite

Maison à construire 78550 Houdan

Agence de Maurepas

01.30.62.67.67 10 route national - 78310 Maurepas

Vous aimerez aussi