• SMA MODELE ELISE avant.jpg
  • SMA MODELE ELISE arriere.jpg
  • SMA MODELE ELISE int.jpg
  • ELISE PLAN.PNG
  • Logo SMA.png
5
75 m² Terrain de 904 m² 3 pièces 3 chambres 1 sdb / sde

Breuilpont!! magnifique terrain plat, belle exposition, nombreuses possibilités de constructions

238 000 €
Référence : 4053226

a Breuilpont, sur une magnifique terrain de 904 m², plat, viabilisé eau/EDF, en retrait de la rue, environnement sans vis à vis, vue sur la campagne. à 5 minutes de Bueil ( gare SNCF) et 10 minutes de Bréval ( gare SNCF, BUS A14, commerces et grandes surgaces) idéale pour premiere acquisition, et acceuillir votre famille.a visiter sans tarder. FRAIS DE NOTAIRE ET DE RACCORDEMENTS INCLUS.

Vous avez un projet de construction ?
N'attendez plus, venez discuter de votre projet de construction avec l'un de nos conseillers dans l'une de nos agences situées proche de chez vous.
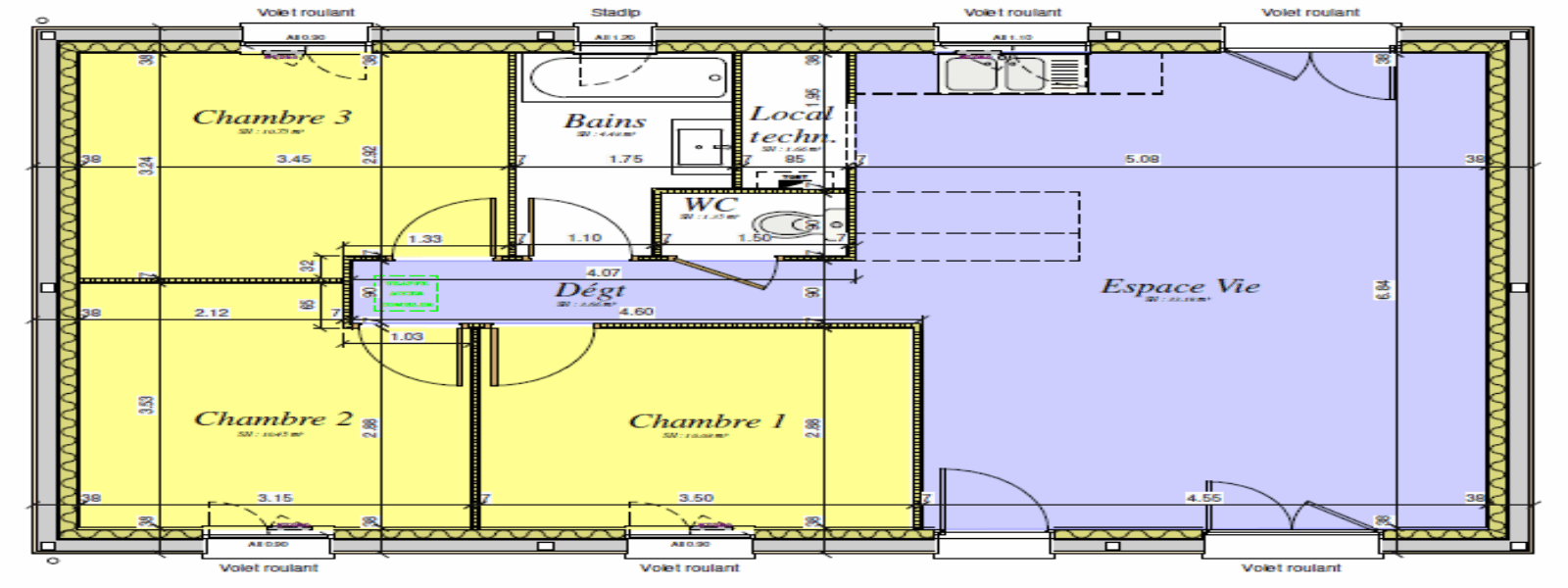
Voici notre nouveau modèle ELISE. Ce modèle de maison plain pied de 75.61m² minimum est composé d'une pièce de vie de plus de 33 m², d'une partie nuit qui se compose de 3 chambres. Vous pouvez en dédier une à usage de bureau ou salle de jeux. Une salle de bain équipée d'une baignoire ou douche est accessible par le couloir ainsi que des WC indépendants.
Nos modèles de maison SMA sont modulables et personnalisables afin de les faire correspondre au mieux à vos attentes.

Simulation gratuite

Maison à construire 27640 Breuilpont

Agence de Maurepas

01.30.62.67.67 10 route national - 78310 Maurepas

Vous aimerez aussi