• SMA MODELE ELISE avant.jpg
  • SMA MODELE ELISE arriere.jpg
  • SMA MODELE ELISE int.jpg
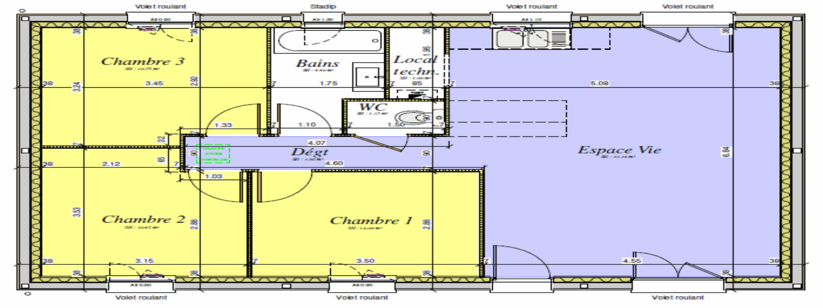
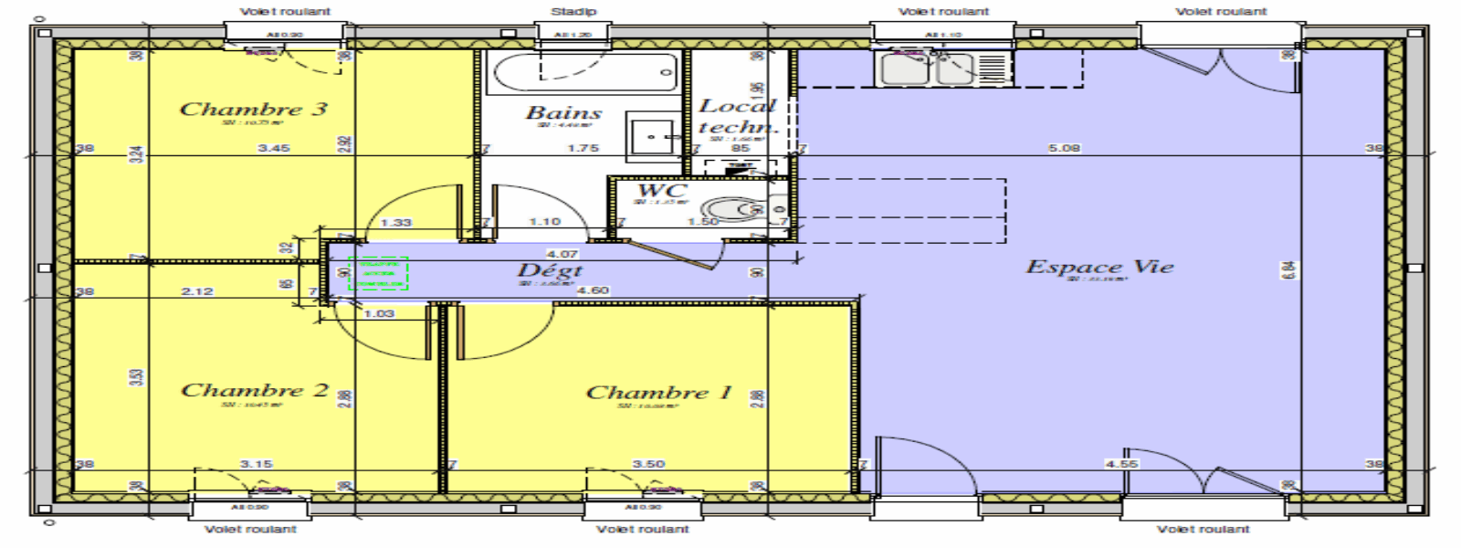
  • ELISE PLAN.PNG
  • Logo SMA.png
5
75 m² Terrain de 781 m² 3 pièces 3 chambres 1 sdb / sde

magnifique vue, pas de vis à vis, toutes commodités, écoles!

247 000 €
Référence : 4060670

Vous avez un projet de construction ?
N'attendez plus, venez discuter de votre projet de construction avec l'un de nos conseillers dans l'une de nos agences situées proche de chez vous.
Voici notre nouveau modèle ELISE. Ce modèle de maison plain pied de 75.61m² minimum est composé d'une pièce de vie de plus de 33 m², d'une partie nuit qui se compose de 3 chambres. Vous pouvez en dédier une à usage de bureau ou salle de jeux. Une salle de bain équipée d'une baignoire ou douche est accessible par le couloir ainsi que des WC indépendants.
Nos modèles de maison SMA sont modulables et personnalisables afin de les faire correspondre au mieux à vos attentes.

Simulation gratuite

Maison à construire 27000 Évreux

Agence de Maurepas

01.30.62.67.67 10 route national - 78310 Maurepas

Vous aimerez aussi