• SMA MODELE ELISE avant.jpg
  • SMA MODELE ELISE arriere.jpg
  • SMA MODELE ELISE int.jpg
  • ELISE PLAN.PNG
  • Logo SMA.png
5
75 m² Terrain de 262 m² 3 pièces 3 chambres 1 sdb / sde

situation idéale entre grands axes!! anet

236 000 €
Référence : 4057246

a Anet, centre ville, au calme d'une voie nouvelle résidentielle, toutes grandes surfaces ( leclerc-bricolage-etc) écoles, à 12 minutes de l'A12 via Houdan, 20 minutes de Bréval ( gare SNCF) à proximité du chateau de Diane, idéal pour acceuillir votre famille. vous recherchez un cadre de vie, tranuillité? ce projet est fait poyr vous!!! contactez ALAIN BRUNOIS AU 06 72 25 40 73.

Vous avez un projet de construction ?
N'attendez plus, venez discuter de votre projet de construction avec l'un de nos conseillers dans l'une de nos agences situées proche de chez vous.
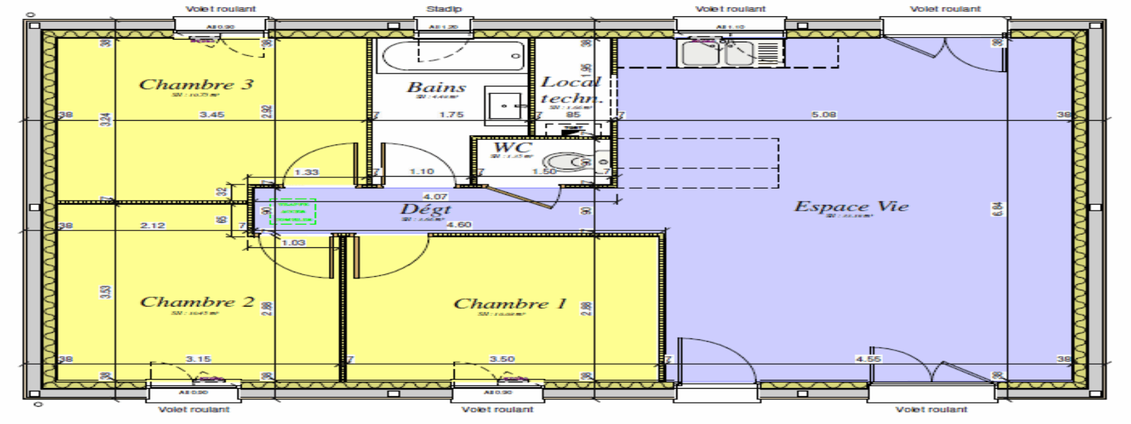
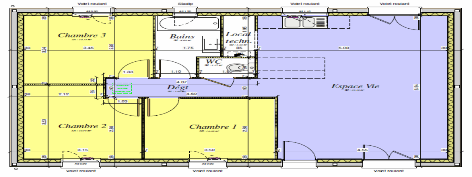
Voici notre nouveau modèle ELISE. Ce modèle de maison plain pied de 75.61m² minimum est composé d'une pièce de vie de plus de 33 m², d'une partie nuit qui se compose de 3 chambres. Vous pouvez en dédier une à usage de bureau ou salle de jeux. Une salle de bain équipée d'une baignoire ou douche est accessible par le couloir ainsi que des WC indépendants.
Nos modèles de maison SMA sont modulables et personnalisables afin de les faire correspondre au mieux à vos attentes.

Simulation gratuite

Maison à construire 28260 Anet

Agence de Maurepas

01.30.62.67.67 10 route national - 78310 Maurepas

Vous aimerez aussi