• SMA MODELE LEA AVANT.jpg
  • SMA MODELE LEA ARRIERE.jpg
  • SMA MODELE LEA INT.jpg
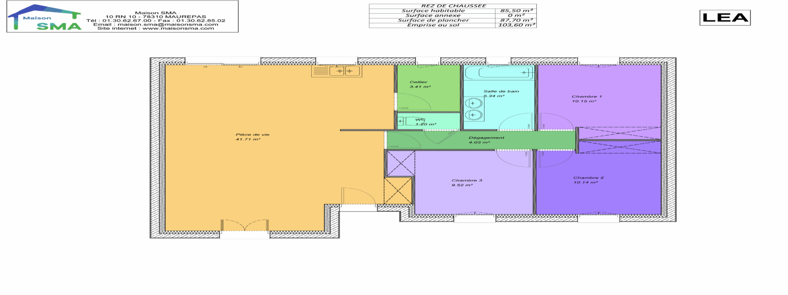
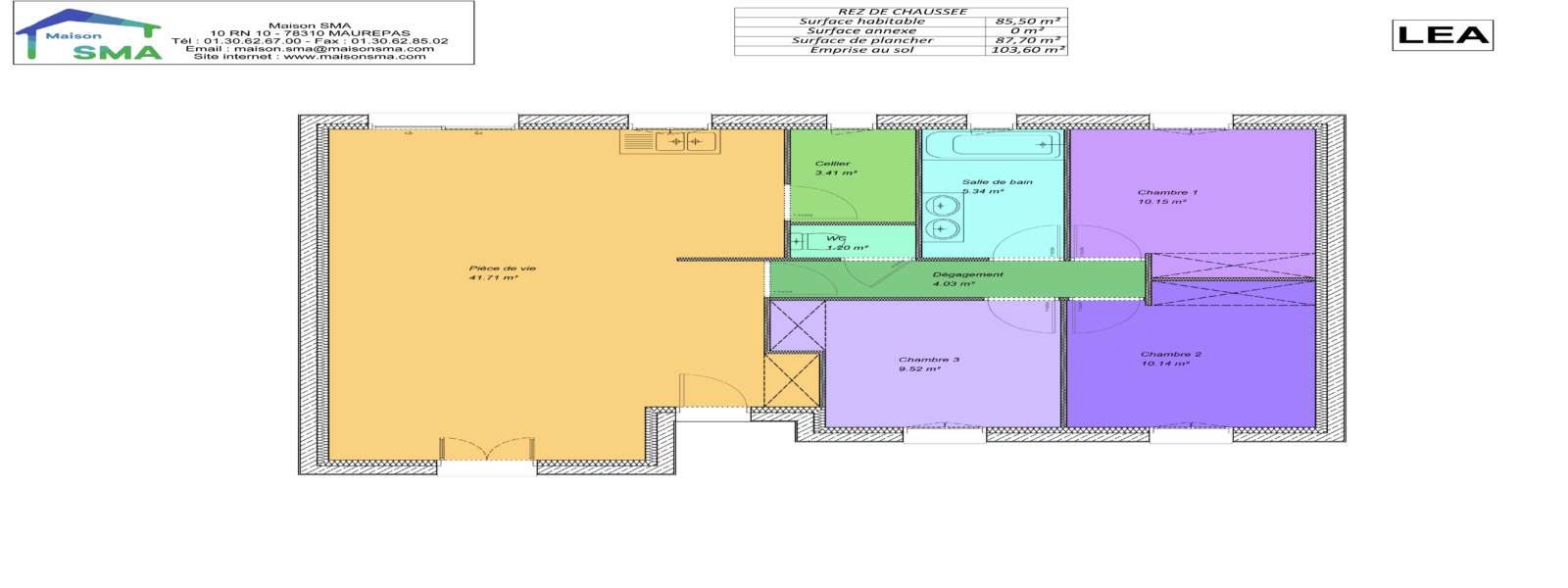
  • LEA_rdc.png
4
110 m² Terrain de 641 m² 4 pièces 2 chambres 1 sdb / sde

Maison neuve à Boissy-Mauvoisin

275 000 €
Référence : 3997932

magnifique terrain plat, entièrement clos, à 15 minutes de Mantes la Jolie, accès A13 rapide, tous commerces proches et centres commerciaux, au clame de cette charmante commune de Boissy-Mauvoisin, possibilité de plain pied ou combles aménagés, belle façade constructible 22 mètres. a ne pas rater!!!

Découvrez notre modèle LEA.
LEA est une maison traditionnelle, de plain-pied, facile à vivre, idéale pour toute la famille.
Elle vous accueille avec chaleur et simplicité grâce à son vaste séjour/salle à manger qui donne sur le jardin.
Cette construction est idéal pour les petits budgets.
Modèle de plain-pied, sa surface habitable varie entre 80m2 et 100m2.
Le séjour/salle à manger s'ouvre sur le jardin.
La maison existe en version 2, 3 ou 4 chambres.
1 Salle de bain
1 cellier
1 WC indépendant

Simulation gratuite

Maison à construire 78200 Boissy-Mauvoisin

Agence de Maurepas

01.30.62.67.67 10 route national - 78310 Maurepas

Vous aimerez aussi